logo

Geheimtipp: Vielseitig nutzbare Gewerbe-, Hallen-, Lagerfläche mit zusätzl. Wohnraum.

Lage: 72669 Unterensingen | Baden-Württemberg
Titel 360
Lagescore + 7 sehr gut
Gäste WC Whg. 1. OG
Zimmer 1. OG
Esszimmer Whg. 1. OG
Wohnzimmer Whg. 1. OG
Balkon Whg. 1. OG
Aussicht vom Balkon Whg. 1. OG
Zimmer Whg. 1. OG
Badezimmer mit Sauna Whg. 1. OG
Badezimmer Whg. 1. OG
Terrasse Whg. 1. OG
Terrasse Whg. 1. OG
Terrasse Whg. 1. OG
Küche Whg. 1. OG
Küche Whg. 1. OG
Zimmer Whg. DG
Zimmer Whg. DG
Zimmer Whg. DG
Wohnzimmer Whg. DG
Esszimmer Whg. DG
Küche Whg. DG
Straßenansicht
Hausansicht
Lagerhalle
Carport
Büro
Büro
Lagerhalle
Umkleide
Empore
Empore

Beschreibung

Zum Verkauf steht eine vielseitig nutzbare Gewerbe-, Hallen-, Lagerfläche mit zusätzlichem Wohnraum in 72669 Unterensingen, Landkreis Esslingen.

Dieses Objekt bietet eine gute Gelegenheit für Investoren und Unternehmer, die auf der Suche nach einer strategisch günstig gelegenen Gewerbeimmobilie sind.

Die Einheit überzeugt durch ihre großzügige Nutzfläche, die sich hervorragend für eine Vielzahl von Geschäftsmodellen eignet.

Ob als Lagerraum, Montage, Fitness-Studio oder als zentrales Logistikzentrum – hier bieten sich vielfältige Nutzungsmöglichkeiten, die Ihnen Flexibilität und Erweiterungschancen für Ihr Geschäft eröffnen.

Genügend Stellplatzmöglichkeiten für den Firmenfuhrpark sind vorhanden.

Highlights:

*Neue PV-Anlage incl. 2 Schnellladestationen (Wallboxen) für E-Fahrzeuge
*Glasfaseranschluss
*Telekommunikation Verkabelung im Haus
*Neue Heizung

Darüber hinaus hat die Immobilie 3 Wohnungen zu bieten, die vielfältig genutzt werden können: Wohnraum für Führungskräfte, Inhaber, Mitarbeiter, Monteure, Gäste, Besucher oder als Seminarräume, etc…

2 Wohnungen (1. OG und DG) sind aktuell vom Verkäufer bezogen. Diese können nach Absprache frei werden.

Die Immobilie wurde umfassend renoviert in letzter Zeit, siehe Rubrik "Ausstattung". Sie können sofort loslegen.

Unterensingen zeichnet sich durch seine hervorragende Anbindung an das Verkehrsnetz aus. Die Autobahnen A8 und A81 sind in wenigen Minuten erreichbar und gewährleisten eine unkomplizierte Logistik und Anfahrtswege. Zudem bietet der Ort eine angenehme Umgebung mit einer guten Infrastruktur, die sowohl das Arbeits- als auch das Lebensumfeld bereichert.

Nutzen Sie diese einmalige Gelegenheit, Ihr Geschäft an einem optimalen Standort zu erweitern oder neu zu etablieren.

Lage und Verkehrsanbindung

Lagescore (Bandbreite von -10 bis +10) gemäß Sprengnetter (Was ist Sprengnetter? Einer der Marktführer für Immobilienbewertung):

Mikrolage: Sehr gut + 7
Makrolage im Kreis Esslingen: Sehr gut + 7

Die hier angebotene Gewerbe-/Wohnimmobilie besticht durch ihre hervorragende Lage. Diese Lage garantiert Ihnen nicht nur eine ausgezeichnete Erreichbarkeit, sondern auch ein erweitertes Netzwerk von wirtschaftlich relevanten Einrichtungen und Dienstleistern.

In unmittelbarer Nähe finden Sie wichtige Anlaufstellen wie den Kindergarten, der nur ca. 300 Meter entfernt liegt – ein attraktiver Faktor für Unternehmen, die auf die Vereinbarkeit von Familie und Beruf Wert legen.

Für Geschäftsleute und Arbeitnehmer ist die Anbindung an den öffentlichen Nahverkehr von besonderer Bedeutung. Die Bushaltestellen Unterensingen Blumenstraße und Unterensingen Stern sind in weniger als 400 Metern erreichbar und sorgen für eine problemlose Erreichbarkeit Ihres Unternehmens auch ohne eigene PKW-Nutzung. Dies unterstreicht die hohe ÖPNV Anbindung der Region, die durch eine Vielzahl an regelmäßigen Verbindungen unterstützt wird.

Die Erreichbarkeit auf internationaler Ebene wird durch die Nähe zum nächstgelegenen internationalen Flughafen gewährleistet. Der Flughafen Stuttgart ist lediglich 18 Kilometer entfernt, was nicht nur Geschäftsreisen vereinfacht, sondern auch internationale Geschäftspartner unkompliziert anzieht.
Für den individuellen PKW-Verkehr ist die nahe Anbindung an die Autobahnen A8 und A81 von großer Bedeutung.

Darüber hinaus bietet die Umgebung eine ausgezeichnete Versorgungslage.

Innerhalb kurzer Distanz finden sich verschiedene Einkaufsmöglichkeiten, die den täglichen Bedarf decken.

Ebenso tragen nahegelegene Sportstätten und Naherholungsgebiete zu einer hohen Lebensqualität bei.

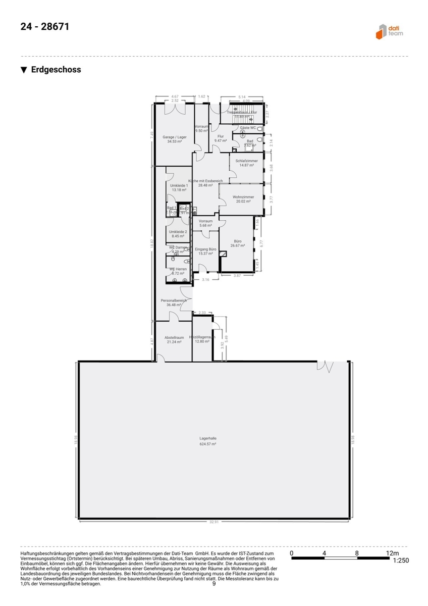
Lagepläne

Plan 0

Fakten

Objektnummer:
VK2026182HS
Objekttyp:
Lager
Wohnfläche:
270,29 m²
Lagerfläche:
1.367,35 m²
Gesamtfläche:
1.831,22 m²
Baujahr:
1971
Zustand:
Modernisiert
Verfügbarkeit:
Verfügbar

Preisdetails

Kaufpreis:
1.750.000,00 €
Provision:
Die Käufer-Provision beträgt 3,57 % vom Kaufpreis inkl. 19 % MwSt.

Energieeffizienz

Endenergiebedarf:
174.80 kWh/(m²*a)
Stromwert:
12.20
Wesentliche Energieträger:
Oel
Wärmewert:
230.20
Baujahr laut Energieausweis:
2023
Ausstellung:
ab dem 1.5.2014
Energieausweisart:
Energiebedarfsausweis
Gültig bis:
13.06.2034

Ansprechpartner

Hans-Jürgen  Schmidt

Hans-Jürgen Schmidt

Anfrage
Max. 500 Zeichen
Ich habe die Datenschutzvereinbarung gelesen und verstanden, und ich stimme der Verarbeitung meiner persönlichen Daten wie darin beschrieben zu. *